
Printworks redevelopment project 3 view. 2024 - Credits : Hawkins\Brown




Written by
Alexandre Trochut
Culture
Tuesday, September 24, 2024 will marks a vital step into Printworks London comeback journey following Southwark Council’s has approved the redevelopment plans designed by World-renowned architectural firm Hawkins\Brown while the news has been confirmed & celebrated by the Night Time Industries Association (NTIA).
Following the project’s approval, BPM acquired the council-approved documents, including conceptual drawings that provide a clearer vision of the overall redevelopment. Earlier this year, in February 2024, British Land had entered into discussions with Broadwick Live about transforming the former printing facility into a mixed-use “cultural venue.” and therefore, the visuals are representing a vibrant social hub known as The Grand Press, featuring including next-generation sustainable workspaces and retails and an exhibition space, that will primarily be accessible via Printworks Square.

Printworks redevelopment project 3 view. 2024 - Credits : Hawkins\Brown
Printworks London will make a comeback in 2026 while being insured keeping the legendary Press Halls as iconic electronic music culture nightlife venue.
Tuesday, September 24, 2024 will marks a vital step into Printworks London comeback journey following Southwark Council’s has approved the redevelopment plans designed by World-renowned architectural firm Hawkins\Brown while the news has been confirmed & celebrated by the Night Time Industries Association (NTIA).
Following the project’s approval, BPM acquired the council-approved documents, including conceptual drawings that provide a clearer vision of the overall redevelopment. Earlier this year, in February 2024, British Land had entered into discussions with Broadwick Live about transforming the former printing facility into a mixed-use “cultural venue.” and therefore, the visuals are representing a vibrant social hub known as The Grand Press, featuring including next-generation sustainable workspaces and retails and an exhibition space, that will primarily be accessible via Printworks Square.

Printworks redevelopment project 3 view. 2024 - Credits : Hawkins\Brown
We are thrilled to hear that Printworks has officially received planning consent for redevelopment. This marks an incredibly positive moment for London’s nightlife and the city’s broader cultural ecosystem. (…)The support from local authorities, the community, the music industry, key stakeholders, and the team behind Printworks has been crucial to this victory.
CEO of NTIA
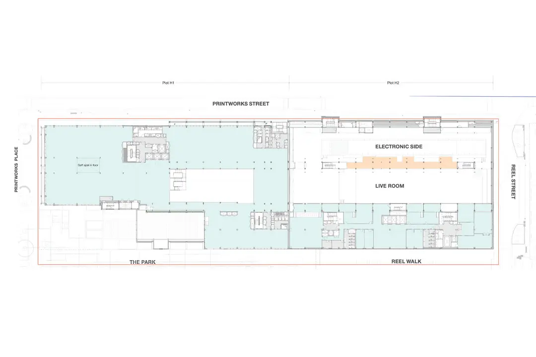
Meanwhile, the redevelopment also include 2 main music-dedicated spaces; The Press Halls, the legendary iconic room, which will remain a dedicated electronic music venue & home to Printworks superclub and another size-similar live music venue parallel to it while the project stated the Press Halls will also be used for corporate events, meetings, and conferences in addition to hosting club nights with working spaces offering views of the venue - which is quite interesting when you think about it ! Both Live concert hall and Printworks—are expected to be accessed from Printworks Street on the side.
This positive news comes amid a challenging time for the UK’s nightlife scene as 65 nightclubs have closed across the country since the beginning of 2024, with an alarming rate of three closures per week—higher than in previous years, as a recent CGA Neilson report revealed. With Printworks set to reopen, London’s nightlife is poised for a much-needed resurgence. The club’s revival promises to reignite the city’s dance music culture and offer a crucial space for creativity and connection in the years to come.

Printworks redevelopment project map. 2024 - Credits : Hawkins\Brown
We are thrilled to hear that Printworks has officially received planning consent for redevelopment. This marks an incredibly positive moment for London’s nightlife and the city’s broader cultural ecosystem. (…)The support from local authorities, the community, the music industry, key stakeholders, and the team behind Printworks has been crucial to this victory.
CEO of NTIA
Meanwhile, the redevelopment also include 2 main music-dedicated spaces; The Press Halls, the legendary iconic room, which will remain a dedicated electronic music venue & home to Printworks superclub and another size-similar live music venue parallel to it while the project stated the Press Halls will also be used for corporate events, meetings, and conferences in addition to hosting club nights with working spaces offering views of the venue - which is quite interesting when you think about it ! Both Live concert hall and Printworks—are expected to be accessed from Printworks Street on the side.
This positive news comes amid a challenging time for the UK’s nightlife scene as 65 nightclubs have closed across the country since the beginning of 2024, with an alarming rate of three closures per week—higher than in previous years, as a recent CGA Neilson report revealed. With Printworks set to reopen, London’s nightlife is poised for a much-needed resurgence. The club’s revival promises to reignite the city’s dance music culture and offer a crucial space for creativity and connection in the years to come.

Printworks redevelopment project map. 2024 - Credits : Hawkins\Brown
With these exciting plans now moving forward, we are one step closer to reopening the venue, bringing back the energy, passion, and world-class experiences that made Printworks a legendary space. We eagerly await the next chapter and the role Printworks will play in revitalising London’s night-time economy.
CEO of NTIA
With these exciting plans now moving forward, we are one step closer to reopening the venue, bringing back the energy, passion, and world-class experiences that made Printworks a legendary space. We eagerly await the next chapter and the role Printworks will play in revitalising London’s night-time economy.
CEO of NTIA

Printworks Street entrance view. 2024 - Credits : Hawkins\Brown

Printworks redevelopment project view. 2024 - Credits : Hawkins\Brown

Printworks Culture space entrance street view. 2024 - Credits : Hawkins\Brown

Printworks Street entrance view. 2024 - Credits : Hawkins\Brown

Printworks redevelopment project view. 2024 - Credits : Hawkins\Brown

Printworks Culture space entrance street view. 2024 - Credits : Hawkins\Brown

Printworks Street entrance view. 2024 - Credits : Hawkins\Brown

Printworks redevelopment project view. 2024 - Credits : Hawkins\Brown

Printworks Culture space entrance street view. 2024 - Credits : Hawkins\Brown

Printworks Street entrance view. 2024 - Credits : Hawkins\Brown

Printworks redevelopment project view. 2024 - Credits : Hawkins\Brown

Printworks Culture space entrance street view. 2024 - Credits : Hawkins\Brown

Printworks Street entrance view. 2024 - Credits : Hawkins\Brown

Printworks redevelopment project view. 2024 - Credits : Hawkins\Brown

Printworks Culture space entrance street view. 2024 - Credits : Hawkins\Brown

Printworks Street entrance view. 2024 - Credits : Hawkins\Brown

Printworks redevelopment project view. 2024 - Credits : Hawkins\Brown

Printworks Culture space entrance street view. 2024 - Credits : Hawkins\Brown